© 2026 CB Architetti - All rights reserved
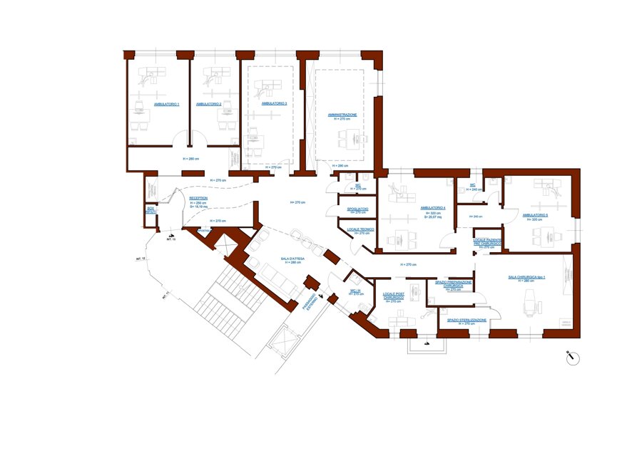
Studio Medico · CENTRO MEDICO FIESCHI · 270 mq · Genova, centro

Ambulatorio di assistenza polispecialistica e chirurgia ambulatoriale "CENTRO MEDICO FIESCHI Srl".
Pavimentazione in linoleum pregiato in tutta l'unità immobiliare e zoccolino in legno bianco semplice. Tutti gli impianti sono stati realizzati sotto traccia. I controsoffitti a quote differenti di colore bianco, sono stati realizzati sia a superficie continua sia con pannelli modulari a struttura nascosta, laddove siano necessarie future manutenzioni dei macchinari installati. Faretti quadrati incassati, tagli di luce e strisce a led lungo le velette creano un'illuminazione diffusa o diretta a seconda della necessità.
Tutti gli Ambulatori hanno le pareti tinteggiate con una pittura a smalto opaca che soddisfa i requisiti igienico-sanitari e sono dotati di un lavandino. La Sala Chirurgica è caratterizzata da un pavimento in linoleum raccordato con continuità alle pareti fino a un’altezza di 2 metri come da normativa vigente. La Reception presenta un controsoffitto con andamento curvilineo e una parete caratterizzata da una particolare cromia ad effetto materico sulla quale spicca l'insegna luminosa "CMF", logo creato appositamente per la committenza. I servizi igienici, di cui uno ad uso disabile, sono stati realizzati in piastrelle di gres ceramico. Porte interne, pareti vetrate e arredo sono stati curati al fine di rendere gli spazi armoniosi e confortevoli.



Pianta dello Stato Attuale, Pianta del Progetto e Pianta delle Sovrapposizioni

Pianta della soluzione progettuale arredata





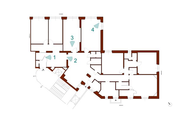
Rendering fotorealistici della soluzione progettuale e planimetria di riferimento con coni ottici
Confronto prima e dopo i lavori di ristrutturazione
Confronto tra il rendering fotorealistico della soluzione progettuale e a lavori ultimati
© 2026 CB Architetti - All rights reserved