© 2026 CB Architetti - All rights reserved
Casa G&C · 90 mq · Genova, albaro

Un intervento che combina funzionalità ed eleganza per ridefinire gli spazi abitativi. Il soggiorno open space, con angolo cottura, è caratterizzato da un piano cottura a induzione e un pannello paraschizzi decorato, armonizzato con i toni cromatici dell'intera abitazione. Una parete attrezzata minimal per la TV valorizza l'ambiente eliminando il superfluo, senza rinunciare a un design contemporaneo.
L'intero appartamento è pavimentato in gres ceramico effetto legno, donando calore e continuità agli spazi. La camera matrimoniale si distingue per la testiera del letto che integra la funzione di comodino, un dettaglio pratico e raffinato. I servizi igienici, dai colori delicati, presentano rivestimenti selezionati con cura per un risultato estetico accogliente e ricercato.
Completano il progetto controsoffitti bianchi con faretti incassati, dettagli cromati come le rosette copritubo per i caloriferi, e un'attenta gestione degli spazi per un risultato moderno e funzionale.



Pianta dello Stato Attuale, Pianta del Progetto e Pianta delle Sovrapposizioni

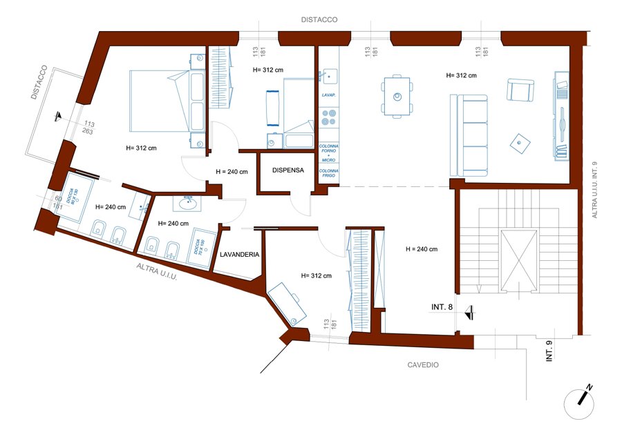
Pianta della soluzione progettuale arredata


Rendering fotorealistici della soluzione progettuale e planimetria di riferimento con coni ottici
Confronto prima e dopo i lavori di ristrutturazione